Products

Biomass steam boiler
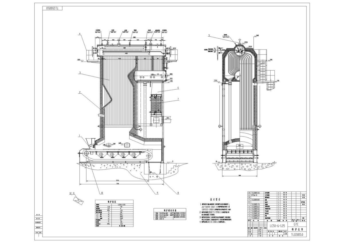
Biomass boiler is a customized design boiler for different biomass fuel, such as wood chips, rice husk, biogases, coconut shell, straw and biomass pellet, etc.

Product introduction

Overview:

Biomass boiler is a customized design boiler for different biomass fuel, such as wood chips, rice husk, biogases, coconut shell, straw and biomass pellet, etc. 

25.jpg

226.jpg


Benefit:

Clean and renewable energy, good for environment

Fuel cost is much lower than traditional fuel, reduce running cost

Help user to process biomass waste, such as furniture factory, agriculture product processing factory, etc.

Solve energy shortage problem in remote area  


Construction:

Double drum design and water tube structure, assembly type. To suit biomass fuel, we increase the fire chamber and heating area much bigger than coal fired boiler. The furnace has a special design—cyclone re-burning chamber, which will make biomass fuel burning completely and reduce the dust content of emission. 

It will increase the boiler efficiency and reduce the concentration of emission.

Use mechanical and air blowing type feeding system, which make the feeding steady and reliable.

Depends on different biomass fuel type and size, we will chose different grate, such as chain grate, reciprocating grate, vibrating grate, etc.

217.jpg


Technical parameters


Model SZL1-1.25SZL2-1.25/1.6SZL4-1.25/1.6SZL6-1.25/1.6SZL8-1.25/1.6SZL10-2.5/400SZL15-2.5/400SZL20-2.5/400
Rated evaporation capacityt/h12468101520
Rated working pressureMPa1.251.25/1.61.25/1.61.25/1.61.25/1.62.52.52.5
Steam temperature194194/204194/204194/204194/204400400400
Grate efficient aream21.2934.67.29.913.118.8424
Fuel type/ wood chips, rice husk, bagasse, coconut shell, straw, biomass pellet
Exhaust temperature175170165170170170170170
Emission concentrationmg/Nm3<80<80<80<80<80<80<80<80
Working efficiency%77.380.383.2778.0878.0882.178282.5
Delivery type/PackagedAssembly/in bulk


Get a Free Quote

Submit

Related Products